Projektarchitektur Berne
Was heißt eigentlich Baustelleneinrichtung?
Mit der Projektarchitektur für das Projekt Schule Berne haben wir gemeinsam mit und für den Verein KuBiZ e.V. einen Ort entwickelt, der auch während der Sanierung der ehemaligen Schulgebäude Platz bietet, für die nachbarschaftliche Nutzung und Planung des Ortes.
| Ort | Hamburg |
|---|---|
| Auftraggeber:in | KuBiZ e.V. / fux eG |
| Kooperationspartner:in | |
| Zeitraum | 2022 – 2023 |
| Status | Abgeschlossen |
| Kategorie | Architektur, Kultur, Teilhabe |

Im fortschreitenden Prozess der Umnutzung der ehemaligen Schule Lienaustraße in Hamburg Berne dient die temporäre Projektarchitektur den zukünftigen Nutzerinnen als Ort während der Sanierungsphase.
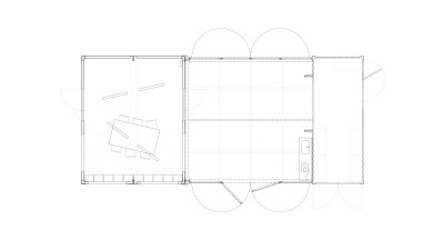
Gemeinsam mit den Nutzer:innen des zukünftigen Kulturzentrums wurden die Dimensionen und Ausrichtungen der Projektarchitektur auf dem Hof abgesteckt. Im Planspiel wurden unterschiedliche Konfigurationen diskutiert. Die Projektarchitektur soll dabei eine Abfolge an unterschiedlichen Räumen aufnehmen – die Anlaufstelle, eine Halle bzw. überdachten Außenraum und eine kleine Werkstatt.
Wenn nach fertigstellung der Sanierung der Raum der Anlaufstelle nicht mehr benötigt wird, kann dieser entweder als zusätzlicher Projektraum weitergenuzt, oder entfernt werden und es bleibt eine Hof-Werkstatt mit überdachtem Außenbereich.














