Post–Corona–Stadt
Ende April 2024 endet der 22 Monate dauernde Förderzeitraum des Projektes "Billhorner Platz". Als eines von bundesweit 17 Projekten zum Thema "Post-Corona-Stadt" der Nationalen Stadtentwicklungspolitik fragt der Billhorner Platz auch danach, wie sich mit der Corona-Pandemie der Blick auf den öffentlichen Raum gewandelt hat. Welche Orte im Stadtteil haben gut funktioniert und welche vielleicht weniger gut? Welche Akteure und welche Strukturen haben sich in so einer Situation bewiesen und als wichtig herausgestellt?
Noch im Sommer 2022 gab es den Billhorner Platz und seinen Namen nicht. Bekannt war der Ort vor allem als eine vielbefahrene Straßenkreuzung direkt am Stadtteileingang nach Rothenburgsort. In früheren Zeiten fand hier mal der Markt statt. In Zukunft könnte hier wieder ein Stadtplatz entstehen, so der Rahmenplan „Stadteingang Elbbrücken“, und auch der „Alster-Bille-Elbe Grünzug“ soll hier entlang verlaufen.
Siehe auch pb_040 Billhorner Platz
Ort | Hamburg |
---|---|
Auftraggeber:in | Behörde für Stadtentwicklung und Wohnen der Freien und Hansestadt Hamburg |
Kooperationspartner:in | raumlabor berlin| endboss| Klass - Büro für Gestaltung| Nebou N´Diaye| Suna Voß (dock europe e.V.)| Sandy Kaltenborn| Stefan Endewardt |
Zeitraum | 2022 – 2024 |
Status | Abgeschlossen |
Kategorie | Freiraum, Prozessgestaltung, Städtebau, Teilhabe, Veröffentlichung |

„Wir stellen uns auf eine Kreuzung und behaupten, sie sei ein Platz!“
Mit diesem Satz startete das Projekt Billhorner Platz seinen knapp zweijährigen Verlauf. Mittlerweile ist der Name im Stadtteil und auch in den ihn planenden Behörden und Büros in den normalen Sprachgebrauch übergegangen. Der „Billhorner Platz“ hat ein dichtes Beziehungsgefüge im Stadtteil geknüpft und ist zum Ort und Gegenstand geworden, an dem die zukünftige Gestaltung des Stadtteils diskutiert wird. Mit unterschiedlichen Formen und Formaten, allen voran die Anlaufstelle, die Testspiele und die Magazine, wurde die Kreuzung als Platz wiederholt auf die Probe gestellt und befragt. Dabei setzte der Prozess stets auf die Erfahrungen und das Wissen der Akteure und Handlungen vor Ort.
Fragen an den Bestand
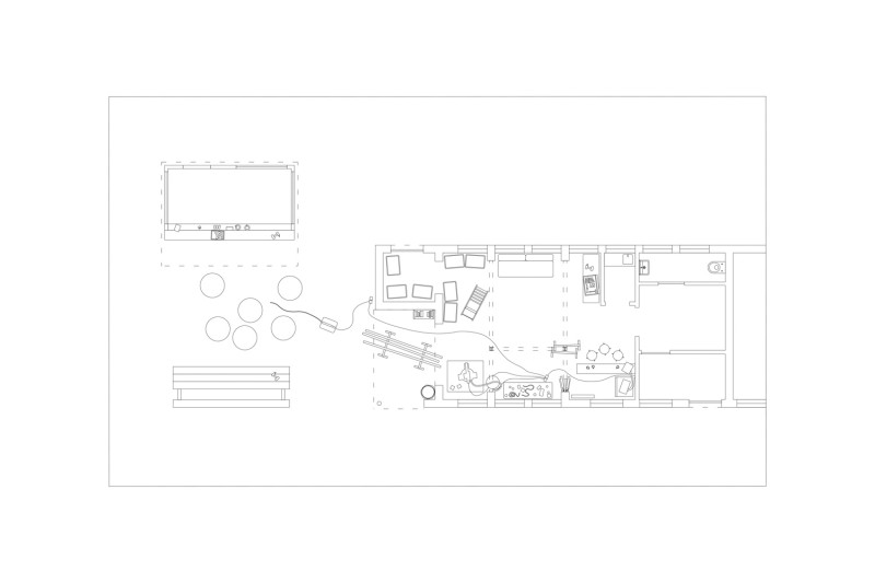
Im Laufe des Projekts hat sich die räumliche Situation an der Kreuzung Billhorner Röhrendamm/Billhorner Mühlenweg verändert. Zum einen gezielt durch temporäre Interventionen des Projekts als Forschungssetting, in dem unmittelbar vor Ort und mit den Menschen Qualitäten und Anforderungen an den öffentlichen Raum getestet, verhandelt und geübt werden können. Zum anderen durch die Umsetzung bereits vor Projektstart geplanter Projekte, die Teil der übergeordneten Stadtentwicklungsplanungen sind, wie unter anderem der Stadteingang Elbrücken, die Nachverdichtung mit Wohnraum, die Umsetzung des Alster-Bille-Elbe Grünzugs und das Konzept Stromaufwärts an Bille und Elbe. Mit den neun Zeichnungen zeigen und dokumentieren wir in sechs Zeitschnitten die unterschiedlichen Situationen im Verlauf des Projekts. Die letzten drei Zeitschnitte illustrieren mit Blick auf die genannten Stadtentwicklungsvorhaben mögliche Zukünfte des Billhorner Platzes.
Veröffentlicht wurden die ergebnisse kontinuierlich in drei Magazinen.
Ein weiteres Format war der Grüne Tisch, an dem wir uns mit behördlichen Vertreter:innen regelmäßig ausgetauscht haben.
Abschlussfahrt mit dem Projektbegleitkreis
Abschlussfest am Billhornerplatz